top of page
NANCY VANG
Interior Design
Residence Design: Remodeled Project
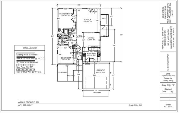
This is a remodel project of a given floor plan. The goal was to modified the space to meet the client needs. The style chosen was a Modern Industrial style.
The project consisted of many drawings like as built/demo plan, proposed plan, specification sheets, lighting and electrical plan, kitchen plan, bathroom plan, and kitchen and bath elevations, and exterior elevations.
The unique part about this project is the mood board. I get to choose the furniture, fixture, and fabric finishes and place them together to see if they compliment each other in term of meeting the style.

bottom of page










